プライムタウン木戸町

2,390万円

静岡県浜松市中央区木戸町6-1

遠州鉄道「第一通り」駅徒歩14分

価格
2,390万円
間取り/面積
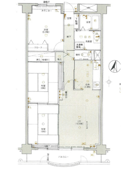
3LDK/75.37㎡
所在地
静岡県浜松市中央区木戸町6-1
築年
1995年7月(築30年)
駐車
-
交通

遠州鉄道第一通り」駅 徒歩14分

プライムタウン木戸町の基本情報

物件名
プライムタウン木戸町
価格
2,390万円
築年月
1995年7月(築30年)
総戸数
50戸
所在地
静岡県浜松市中央区木戸町6-1
交通

遠州鉄道第一通り」駅 徒歩14分

プライムタウン木戸町の詳細情報

設備条件
  • エレベーター
設備(その他)
    -
駐車場/月額
-/-
土地権利
所有権
国土法届出
不要
用途地域
近隣商業
販売戸数 / 総戸数
- / 50戸
管理形態
管理会社に全部委託
管理員の勤務形態
巡回
管理会社
-
取引態様
仲介
引渡し
即時

プライムタウン木戸町で募集中の物件

  1. 6階

    22.79坪 (75.37㎡)

    2,390万円(104.87万円/坪)

周辺施設

  • ファミリーマート 浜松中央三丁目店の画像

    コンビニエンスストア

    ファミリーマート 浜松中央三丁目店

    340m(5分)

  • 業務スーパー 浜松相生店の画像

    スーパー

    業務スーパー 浜松相生店

    620m(8分)

  • 浜松市立東小学校の画像

    小学校

    浜松市立東小学校

    650m(9分)

  • 浜松市立八幡中学校の画像

    中学校

    浜松市立八幡中学校

    1320m(17分)

近隣の物件

  1. 浜松市中央区篠ケ瀬町

    3LDK (73.79㎡)

    1,350万円

  2. 浜松市中央区鴨江2丁目

    3LDK (74.54㎡)

    1,490万円

  3. 浜松市中央区天王町

    2LDK (58.59㎡)

    1,300万円

  4. 浜松市中央区鴨江3丁目

    3LDK (83.19㎡)

    1,798万円

よく見られている物件

  1. 浜松市中央区助信町

    3LDK+S(納戸) (84.15㎡)

    3,290万円

  2. 磐田市立野

    2LDK (68.03㎡)

    2,290万円

  3. 浜松市中央区相生町

    2LDK (63.54㎡)

    1,490万円

  4. 浜松市中央区高林1丁目

    4LDK (92.70㎡)

    2,090万円

プライムタウン木戸町

お気軽にお問い合わせください

無料お問い合わせ

不動産のアクア

0120-568-030

9:00-19:00

(休:水曜日)